Fiche Projet
Les Points importants de la fiche technique de ce projet d’exception
- Lieu : Rue Lavoisier, Paris 8
- Type de bien : Appartement familial haussmannien
- Surface : 186 m²
- Profil Client : Famille avec trois enfants
- Matériaux utilisés : Mobilier sur mesure, finitions beiges clairs, appareillages Modelec, robinetterie Gessi
- Synthèse technique : Création d’une cloison amovible de type accordéon pour doubler la fonction d’une chambre d’enfant
.
Rénovation d’appartement familial à Paris (8e) – conception et aménagement intérieur clé en main
Résumé du Projet
Les Points-clés de cette Prestation :
- Prestation clé en main: étude de conception, aménagement, sélection des finitions
- Grande pièce de vie: salon lumineux et salle à manger pour 12 convives
- Suite parentale: dressing indépendant et salle d’eau privative apaisante
- Salle de bain enfants sur mesure: plan arrondi, baignoire, large meuble vasque, douche spacieuse avec niches LED
- 3 chambres d’enfants, dont 1 avec salle de douche attenante
- Optimisation des espaces: porte pliante en accordéon créant un espace indépendant pour la nounou
- Mobilier intégralement dessiné et réalisé sur mesure par nos ateliers
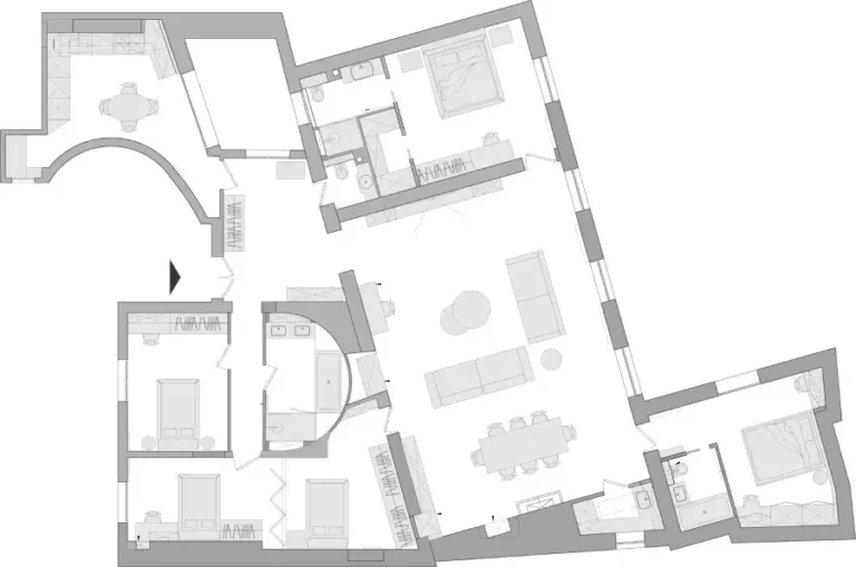
Plan de l'appartement
Portfolio de la Prestation
Rénovation clé en main d’un appartement familial à Paris 8e : architecture d’intérieur et aménagement sur mesure.
Situé rue Lavoisier, au cœur du 8e arrondissement de Paris, cet appartement familial de 186 m² a bénéficié d’une rénovation intégrale, pensée et pilotée par notre agence d’architecture d’intérieur. Notre mission clé en main a couvert la conception spatiale, l’aménagement intérieur, la sélection des matériaux et finitions, ainsi que la création d’un mobilier sur mesure, pour un résultat harmonieux, intemporel et parfaitement adapté au mode de vie des occupants.
Dès l’entrée, la pièce de vie s’impose comme un espace de partage où élégance et convivialité cohabitent naturellement. Le salon, baigné de lumière, se prolonge par une salle à manger généreuse pouvant accueillir jusqu’à douze convives, favorisant la fluidité des circulations et le confort au quotidien. Les interventions sur mesure (rangements, menuiseries, éclairages) renforcent la qualité spatiale et l’équilibre des volumes.
La suite parentale a été conçue comme un véritable cocon. Elle intègre un dressing indépendant et une salle d’eau privative à l’atmosphère apaisante, où la palette de beiges clairs et de matières nobles compose un univers serein, propice au repos. L’attention portée aux détails et aux finitions garantit une expérience haut de gamme, sans concession sur la fonctionnalité.
La salle de bain des enfants constitue l’un des éléments singuliers du projet. Sa forme arrondie, atypique, a été exploitée avec créativité pour intégrer une baignoire élégante, un meuble vasque sur mesure de grande dimension et une douche spacieuse agrémentée de niches rétroéclairées par des bandeaux LED. L’ensemble conjugue praticité et raffinement, avec une robinetterie Gessi et des appareillages électriques Modelec qui assurent la cohérence esthétique et technique.
L’appartement compte trois chambres d’enfants. L’aînée dispose d’une chambre avec salle de douche attenante, favorisant l’autonomie et le confort. Les deux chambres de garçons ont été pensées pour évoluer avec leurs besoins; l’une d’elles a été intelligemment divisée grâce à une porte pliante en accordéon, créant un espace indépendant pour la nounou sans compromettre la modularité de la pièce.
La palette chromatique douce, dominée par des beiges clairs, et le choix de matières nobles confèrent une atmosphère chaleureuse et durable à l’ensemble. Tous les meubles ont été dessinés par notre agence et réalisés par nos ateliers, garantissant une parfaite cohérence esthétique, une fonctionnalité optimisée et une excellence des finitions.
Foire aux Questions
Est-il possible de créer une chambre pour nounou dans un appartement déjà occupé ?
Oui, comme pour ce projet à Paris 8, l’utilisation de solutions modulaires telles que les portes en accordéon ou les cloisons légères permet d’aménager un espace indépendant sans gros œuvre structurel impactant.
Comment optimiser une salle de bain de forme arrondie ?
Les formes atypiques nécessitent souvent la conception d’un meuble vasque sur mesure de grande dimension pour épouser les courbes et maximiser le rangement, complété par des jeux de lumière LED pour souligner l’architecture.
Quels sont les avantages du mobilier dessiné sur mesure par une agence d'architecture ?
Le mobilier sur mesure permet d’allier parfaitement esthétique et fonctionnalité, en s’adaptant aux contraintes spécifiques de chaque pièce (comme les arrondis ou les niches) tout en garantissant une exclusivité de design.
Comment choisir sa palette de couleurs pour un grand appartement familial ?
Pour assurer une harmonie intemporelle, nous recommandons des tons doux et naturels comme les beiges clairs, qui favorisent la luminosité et mettent en valeur les matières nobles sélectionnées.
EXCELLENT Basée sur 11 avis Publié sur Kristine NaltchadjianTrustindex vérifie que la source originale de l'avis est Google. J’ai eu la chance de collaborer avec Elena Obiedcova et l'équipe L. Project sur plusieurs projets, tous menés de A à Z avec un professionnalisme exemplaire. Toujours à l’écoute, réactive et force de proposition, Elena a su allier sens esthétique, rigueur et efficacité. Elle a toujours respecté les délais et les budgets annoncés, ce qui est rare et précieux. Une architecte passionnée, dynamique et d’un grand sérieux — je la recommande sans hésiter !
Réponse du propriétaire
Merci infiniment pour ces mots si bienveillants ! Ce fut un véritable plaisir de collaborer avec vous sur ces projets.Toute l’équipe L.Project sera ravi de renouveler cette belle collaboration à l’avenir.Publié sur Vanessa F.Trustindex vérifie que la source originale de l'avis est Google. Un grand merci à Elena pour la rénovation complète de notre appartement. Disponible et à l’écoute, elle a su s’adapter à nos envies et a trouvé des solutions sur-mesure afin de s’adapter au mieux à nos demandes. Chaque détail a été pris en compte : de la conception des plans au suivi des travaux en passant par le choix des matériaux et des éléments de décoration, tout s’est très bien passé. Je recommande vivement de faire appel à cette agence d’architectes d’intérieur.
Réponse du propriétaire
Merci beaucoup pour votre confiance et pour ce retour si positif. Ce projet a été une très belle aventure, et on est ravi que le résultat soit à la hauteur de vos attentes. Votre implication et votre sens du détail ont largement contribué à la réussite du projet. Toute l’équipe L.Project vous remercie chaleureusement et vous souhaite beaucoup de bonheur dans votre nouvel intérieur !Publié sur Eric HouriTrustindex vérifie que la source originale de l'avis est Google. Nous avons beaucoup apprécié la qualité des échanges lors de la conception du projet, ainsi que les propositions faites et la prise en compte de nos souhaits. La réalisation enfin a été à la hauteur de ce qui nous a été présenté et respecte ce que nous avons décidé ensemble. Je recommande vivement cette agence qui fait preuve d'un grand professionnalisme.Publié sur Nataly KrinitskajaTrustindex vérifie que la source originale de l'avis est Google. Nous avons eu le plaisir de collaborer avec L.Project et nous sommes absolument ravis du résultat. Leur approche est à la fois créative et extrêmement professionnelle, chaque détail est pensé avec soin. L’équipe a su écouter nos besoins, proposer des solutions innovantes et gérer le projet avec une efficacité remarquable. Le design final dépasse nos attentes et reflète parfaitement l’élégance et la qualité premium que nous recherchions. Nous recommandons vivement L.Project à tous ceux qui souhaitent un travail architectural haut de gamme.Publié sur Franck Marie-SainteTrustindex vérifie que la source originale de l'avis est Google. Un grand merci à l’agence L.Project pour la rénovation de mon appartement : expertise, compétences , patience, créativité et imagination , étaient au rendez-vous. Le résultat est au-delà de mes attentes avec une livraison dans les délais ce qui est plutôt rare dans le métier.Publié sur Madame Sensuelle EquipeTrustindex vérifie que la source originale de l'avis est Google. Cette agence a su comprendre exactement mes besoins et mes envies pour ma boutique Madame Sensuelle. Leur architecte-designer a trouvé des solutions justes et élégantes, en créant un espace qui reflète parfaitement l’esprit de ma marque. Professionnels, créatifs et à l’écoute — je recommande vivement !👍🌹Publié sur Елена ВолодинаTrustindex vérifie que la source originale de l'avis est Google. Работать с L.Project — это просто восторг! Рекомендую от всей души. Команда креативная, внимательная и невероятно профессиональная. Подход к проекту продувается до мелочей и , соответственно, результат всегда стильный и впечатляющий. Настоящие мастера своего дела!Publié sur Julia ShiryaevaTrustindex vérifie que la source originale de l'avis est Google. C’était un projet clé en main, depuis les murs nus jusqu’à l’appartement fini dans lequel nous avons pu emménager immédiatement. Nous avons commandé tous nos meubles sur mesure avec L.Project, et nous sommes absolument ravis de la qualité et du prix. Le résultat a dépassé toutes nos attentes. Un grand merci à toute l’équipe pour leur professionnalisme et leur attention aux détails !
Réponse du propriétaire
Merci pour votre confiance 🙏🏻Publié sur Erick LabbeTrustindex vérifie que la source originale de l'avis est Google. Je viens de me faire livrer ma cuisine créer par L project, la cuisine est parfaite, conforme aux plans et visuels. Une super collaboration, merci à toute l'équipe.
Réponse du propriétaire
On vous remercie pour votre commentaire! 🙏🏻Certifié par: TrustindexLe badge vérifié de Trustindex est le symbole universel de confiance. Seules les meilleures entreprises peuvent obtenir le badge vérifié, avec une note supérieure à 4.5, basée sur les avis des clients au cours des derniers 12 mois. En savoir plus
Ce projet incarne notre savoir-faire en architecture d’intérieur: une rénovation complète et maîtrisée, livrée clé en main, au service d’un art de vivre familial exigeant.
Vous avez un projet d’aménagement ou de rénovation ? Contactez notre agence pour imaginer ensemble un espace qui vous ressemble, où chaque détail trouve naturellement sa place.
Rencontrez nos architectes d'intérieur
Olena
Architecte d’intérieur
Fondatrice et Gérante de l’agence L.Project Paris
+ 33 6 75 71 42 35
Elena
Architecte d’intérieur
Gérante de l’agence L.Project Paris
+ 33 6 98 76 57 47
Partagez le Projet sur les Réseaux