Fiche Projet
Fiche technique de ce projet d’exception
- Lieu : Quai d’Orsay, Paris 75007
- Type de bien : Appartement haussmannien de grand standing
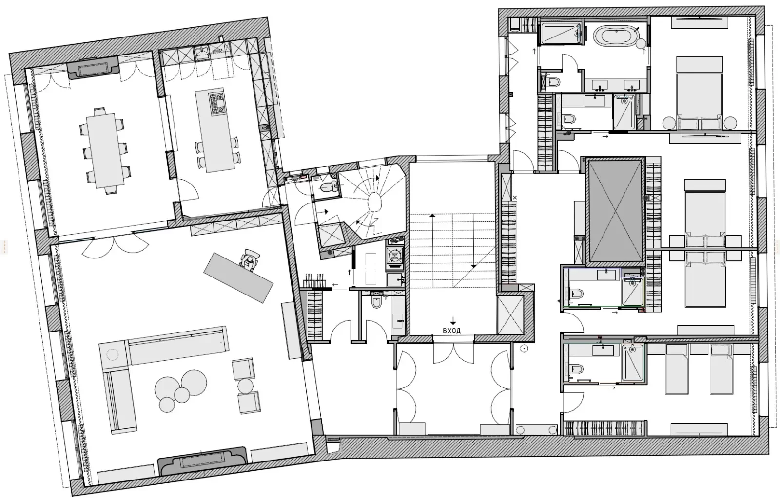
- Surface : 325 m² – 7 pièces, dont 5 chambres
- Profil Client : Famille nombreuse parisienne
- Matériaux : Marbre texturé, chêne naturel, finitions laquées moka
- Equipement : Climatisation réversible gainable, domotique KNX
- Synthèse technique : Intégration invisible des systèmes CVC et travail sur mesure des menuiseries décoratives.
Architecte d'intérieur Paris 7 : rénovation d'un appartement familial de 325 m² Quai d'Orsay
En résumé :
L’essentiel : luxe et fonctionnalité en bord de Seine
Ce projet de restructuration complète transforme un appartement de réception situé Quai d’Orsay e(Paris 7) en une résidence familiale haut de gamme. L’objectif : concilier l’esthétique haussmannienne et les besoins d’une famille de six personnes.
Les Points-clés de cette Prestation :
- Localisation prestige : Paris 7e, secteur Quai d’Orsay / Invalides.
- Capacité d’accueil : 4 chambres d’enfants indépendantes et une suite parentale.
- Performance technique : Intégration domotique et climatique totalement invisible.
- Style : Minimalisme chaud et matériaux organiques.
Portfolio de la Prestation
Agencement sur mesure pour une famille de six personnes
Le défi majeur de cette rénovation Quai d’Orsay consistait à fragmenter 325 m² pour offrir une intimité stricte à chaque membre de la famille tout en conservant des volumes de réception magistraux. La circulation a été repensée pour séparer les flux : une aile dédiée aux enfants et un espace de vie ouvert sur la Seine. L’équilibre entre les zones de partage et les refuges personnels garantit une cohabitation harmonieuse.
Matériaux nobles et finitions haute facture
Pour ce projet, la sélection des matériaux répond à une double exigence de pérennité et d’esthétique :
- Bois naturel : Chêne massif brossé pour les sols et menuiseries sur mesure.
- Pierres de caractère : Marbres texturés (type Travertin ou Calacatta) aux veines marquées pour les pièces d’eau et la cuisine.
- Palette chromatique : Dégradés de moka, café et gris profond, inspirés des teintes minérales parisiennes.
Ingénierie invisible : climatisation et acoustique
L’excellence d’un projet d’architecture d’intérieur à Paris 7 réside dans la gestion des contraintes techniques de l’ancien :
- Système CVC (Climatisation) : Utilisation de diffuseurs linéaires dissimulés dans les corniches ou les menuiseries décoratives, évitant toute rupture visuelle.
- Traitement acoustique : Installation de plafonds absorbants et de doubles portes à âme pleine pour isoler les espaces de nuit des zones de réception.
- Domotique : Centralisation invisible des commandes (éclairage, occultation) via des interfaces tactiles encastrées et discrètes.
Foire aux Questions
Comment adapter un appartement de réception aux enfants sans perdre en standing ?
Est-il possible d'installer une climatisation dans un appartement ancien sans dénaturer le décor ?
EXCELLENT Basée sur 11 avis Publié sur Kristine NaltchadjianTrustindex vérifie que la source originale de l'avis est Google. J’ai eu la chance de collaborer avec Elena Obiedcova et l'équipe L. Project sur plusieurs projets, tous menés de A à Z avec un professionnalisme exemplaire. Toujours à l’écoute, réactive et force de proposition, Elena a su allier sens esthétique, rigueur et efficacité. Elle a toujours respecté les délais et les budgets annoncés, ce qui est rare et précieux. Une architecte passionnée, dynamique et d’un grand sérieux — je la recommande sans hésiter !
Réponse du propriétaire
Merci infiniment pour ces mots si bienveillants ! Ce fut un véritable plaisir de collaborer avec vous sur ces projets.Toute l’équipe L.Project sera ravi de renouveler cette belle collaboration à l’avenir.Publié sur Vanessa F.Trustindex vérifie que la source originale de l'avis est Google. Un grand merci à Elena pour la rénovation complète de notre appartement. Disponible et à l’écoute, elle a su s’adapter à nos envies et a trouvé des solutions sur-mesure afin de s’adapter au mieux à nos demandes. Chaque détail a été pris en compte : de la conception des plans au suivi des travaux en passant par le choix des matériaux et des éléments de décoration, tout s’est très bien passé. Je recommande vivement de faire appel à cette agence d’architectes d’intérieur.
Réponse du propriétaire
Merci beaucoup pour votre confiance et pour ce retour si positif. Ce projet a été une très belle aventure, et on est ravi que le résultat soit à la hauteur de vos attentes. Votre implication et votre sens du détail ont largement contribué à la réussite du projet. Toute l’équipe L.Project vous remercie chaleureusement et vous souhaite beaucoup de bonheur dans votre nouvel intérieur !Publié sur Eric HouriTrustindex vérifie que la source originale de l'avis est Google. Nous avons beaucoup apprécié la qualité des échanges lors de la conception du projet, ainsi que les propositions faites et la prise en compte de nos souhaits. La réalisation enfin a été à la hauteur de ce qui nous a été présenté et respecte ce que nous avons décidé ensemble. Je recommande vivement cette agence qui fait preuve d'un grand professionnalisme.Publié sur Nataly KrinitskajaTrustindex vérifie que la source originale de l'avis est Google. Nous avons eu le plaisir de collaborer avec L.Project et nous sommes absolument ravis du résultat. Leur approche est à la fois créative et extrêmement professionnelle, chaque détail est pensé avec soin. L’équipe a su écouter nos besoins, proposer des solutions innovantes et gérer le projet avec une efficacité remarquable. Le design final dépasse nos attentes et reflète parfaitement l’élégance et la qualité premium que nous recherchions. Nous recommandons vivement L.Project à tous ceux qui souhaitent un travail architectural haut de gamme.Publié sur Franck Marie-SainteTrustindex vérifie que la source originale de l'avis est Google. Un grand merci à l’agence L.Project pour la rénovation de mon appartement : expertise, compétences , patience, créativité et imagination , étaient au rendez-vous. Le résultat est au-delà de mes attentes avec une livraison dans les délais ce qui est plutôt rare dans le métier.Publié sur Madame Sensuelle EquipeTrustindex vérifie que la source originale de l'avis est Google. Cette agence a su comprendre exactement mes besoins et mes envies pour ma boutique Madame Sensuelle. Leur architecte-designer a trouvé des solutions justes et élégantes, en créant un espace qui reflète parfaitement l’esprit de ma marque. Professionnels, créatifs et à l’écoute — je recommande vivement !👍🌹Publié sur Елена ВолодинаTrustindex vérifie que la source originale de l'avis est Google. Работать с L.Project — это просто восторг! Рекомендую от всей души. Команда креативная, внимательная и невероятно профессиональная. Подход к проекту продувается до мелочей и , соответственно, результат всегда стильный и впечатляющий. Настоящие мастера своего дела!Publié sur Julia ShiryaevaTrustindex vérifie que la source originale de l'avis est Google. C’était un projet clé en main, depuis les murs nus jusqu’à l’appartement fini dans lequel nous avons pu emménager immédiatement. Nous avons commandé tous nos meubles sur mesure avec L.Project, et nous sommes absolument ravis de la qualité et du prix. Le résultat a dépassé toutes nos attentes. Un grand merci à toute l’équipe pour leur professionnalisme et leur attention aux détails !
Réponse du propriétaire
Merci pour votre confiance 🙏🏻Publié sur Erick LabbeTrustindex vérifie que la source originale de l'avis est Google. Je viens de me faire livrer ma cuisine créer par L project, la cuisine est parfaite, conforme aux plans et visuels. Une super collaboration, merci à toute l'équipe.
Réponse du propriétaire
On vous remercie pour votre commentaire! 🙏🏻Certifié par: TrustindexLe badge vérifié de Trustindex est le symbole universel de confiance. Seules les meilleures entreprises peuvent obtenir le badge vérifié, avec une note supérieure à 4.5, basée sur les avis des clients au cours des derniers 12 mois. En savoir plus
Que ce soit pour un pied-à-terre sur la Côte d’Azur ou pour la rénovation complète d’un appartement à Paris, notre approche sur mesure met l’accent sur la qualité, la fonctionnalité et l’émotion que dégage chaque intérieur.
Vous avez un projet d’aménagement ou de rénovation ? Contactez notre agence pour imaginer ensemble un espace qui vous ressemble, où chaque détail trouve naturellement sa place.
Rencontrez nos architectes d'intérieur
Olena
Architecte d’intérieur
Fondatrice et Gérante de l’agence L.Project Paris
+ 33 6 75 71 42 35
Elena
Architecte d’intérieur
Gérante de l’agence L.Project Paris
+ 33 6 98 76 57 47
Partagez le Projet sur les Réseaux