Fiche Projet
Fiche technique de ce projet d’exception
- Lieu : Paris
- Type de bien : Appartement familial d’exception
- Surface : 160 m²
- Profil Client : Famille parisienne
- Matériaux utilisés : Textiles doux, finitions pastels, quincaillerie
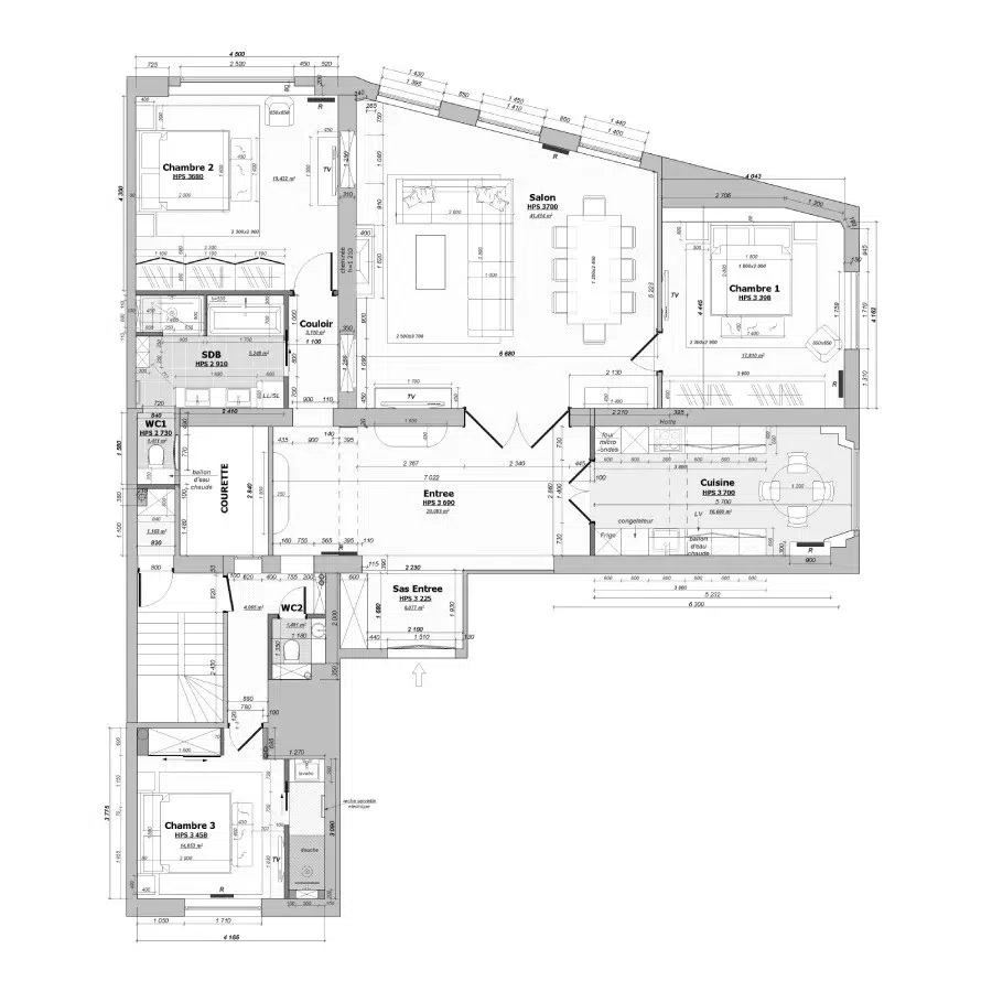
de luxe, menuiserie sur mesure - Synthèse technique : Redistribution structurelle majeure incluant le déplacement des réseaux pour la nouvelle cuisine et la création d’espaces de vie ouverts.
Appartement Haussmannien* : Reconfiguration complète d'un 160m2 à Paris
En résumé :
Ce projet incarne une renaissance spatiale où chaque mètre carré a été repensé pour instaurer une harmonie profonde et durable. Entre douceur chromatique et fluidité des circulations, nous avons métamorphosé ce bien en un refuge familial élégant, reflétant l’âme de ses occupants à travers des détails de haute facture.
Les Points-clés de cette Prestation :
- Fluidité retrouvée : Un plan totalement réorganisé pour une circulation naturelle entre les espaces de vie.
- Sérénité visuelle : Une palette de tonalités pastels et de textiles doux pour une atmosphère apaisante.
- Identité forte : Une conception de mobilier sur mesure adaptée à la personnalité de chaque membre de la famille.
- Détails d’exception : Des finitions raffinées, de la quincaillerie aux ornements de plafond, pour une élégance majestueuse.
Portfolio de la Prestation
Comment optimiser la circulation lors de la
restructuration d’un appartement de 160m2 à Paris ?
La réussite de ce projet repose sur une reconfiguration complète de l’espace, rendue possible par le déplacement stratégique de la cuisine. Ce pivot architectural a permis de décloisonner les volumes et de fluidifier les parcours quotidiens. L’appartement s’articule désormais autour d’une vaste pièce de vie baignée de lumière naturelle, offrant un cadre de réception et de détente sans égal au cœur de la capitale.
Pourquoi choisir le mobilier sur mesure pour un projet familial haut de gamme ?
Pour que l’espace soit réellement au service de ses habitants, le mobilier a été conçu entièrement sur mesure. Cette approche permet non seulement d’optimiser chaque recoin de cet appartement de 160m2, mais aussi de traduire la personnalité unique de chaque membre de la famille dans l’architecture même du lieu. Chaque meuble devient ainsi une pièce de collection fonctionnelle, parfaitement intégrée au nouveau plan.
Quels éléments décoratifs choisir pour apporter de la solennité à un intérieur ?
L’élégance de ce projet réside dans l’équilibre entre confort et prestige. Nous avons privilégié des textiles doux et des tonalités pastels pour instaurer une base chaleureuse. Cette douceur est contrastée par des éléments décoratifs en plafond et une quincaillerie soigneusement sélectionnée, qui confèrent à l’ensemble une élégance majestueuse et une certaine solennité architecturale. Le confort n’est pas en reste, avec une salle de bain généreusement dimensionnée, pensée comme une véritable bulle de bien-être quotidien.
Foire aux Questions
Est-il possible de déplacer une cuisine dans n'importe quel appartement parisien ?
Comment le mobilier sur mesure valorise-t-il un bien de 160m2 ?
Le sur-mesure permet d’unifier l’esthétique du projet tout en répondant aux besoins spécifiques des occupants. Il transforme les contraintes structurelles en atouts de rangement ou de décoration, augmentant ainsi la valeur perçue et l’unicité du bien.
Pourquoi intégrer des éléments de décoration en plafond ?
Quel est l'avantage des tonalités pastels dans une grande pièce de vie ?
EXCELLENT Basée sur 11 avis Publié sur Kristine NaltchadjianTrustindex vérifie que la source originale de l'avis est Google. J’ai eu la chance de collaborer avec Elena Obiedcova et l'équipe L. Project sur plusieurs projets, tous menés de A à Z avec un professionnalisme exemplaire. Toujours à l’écoute, réactive et force de proposition, Elena a su allier sens esthétique, rigueur et efficacité. Elle a toujours respecté les délais et les budgets annoncés, ce qui est rare et précieux. Une architecte passionnée, dynamique et d’un grand sérieux — je la recommande sans hésiter !
Réponse du propriétaire
Merci infiniment pour ces mots si bienveillants ! Ce fut un véritable plaisir de collaborer avec vous sur ces projets.Toute l’équipe L.Project sera ravi de renouveler cette belle collaboration à l’avenir.Publié sur Vanessa F.Trustindex vérifie que la source originale de l'avis est Google. Un grand merci à Elena pour la rénovation complète de notre appartement. Disponible et à l’écoute, elle a su s’adapter à nos envies et a trouvé des solutions sur-mesure afin de s’adapter au mieux à nos demandes. Chaque détail a été pris en compte : de la conception des plans au suivi des travaux en passant par le choix des matériaux et des éléments de décoration, tout s’est très bien passé. Je recommande vivement de faire appel à cette agence d’architectes d’intérieur.
Réponse du propriétaire
Merci beaucoup pour votre confiance et pour ce retour si positif. Ce projet a été une très belle aventure, et on est ravi que le résultat soit à la hauteur de vos attentes. Votre implication et votre sens du détail ont largement contribué à la réussite du projet. Toute l’équipe L.Project vous remercie chaleureusement et vous souhaite beaucoup de bonheur dans votre nouvel intérieur !Publié sur Eric HouriTrustindex vérifie que la source originale de l'avis est Google. Nous avons beaucoup apprécié la qualité des échanges lors de la conception du projet, ainsi que les propositions faites et la prise en compte de nos souhaits. La réalisation enfin a été à la hauteur de ce qui nous a été présenté et respecte ce que nous avons décidé ensemble. Je recommande vivement cette agence qui fait preuve d'un grand professionnalisme.Publié sur Nataly KrinitskajaTrustindex vérifie que la source originale de l'avis est Google. Nous avons eu le plaisir de collaborer avec L.Project et nous sommes absolument ravis du résultat. Leur approche est à la fois créative et extrêmement professionnelle, chaque détail est pensé avec soin. L’équipe a su écouter nos besoins, proposer des solutions innovantes et gérer le projet avec une efficacité remarquable. Le design final dépasse nos attentes et reflète parfaitement l’élégance et la qualité premium que nous recherchions. Nous recommandons vivement L.Project à tous ceux qui souhaitent un travail architectural haut de gamme.Publié sur Franck Marie-SainteTrustindex vérifie que la source originale de l'avis est Google. Un grand merci à l’agence L.Project pour la rénovation de mon appartement : expertise, compétences , patience, créativité et imagination , étaient au rendez-vous. Le résultat est au-delà de mes attentes avec une livraison dans les délais ce qui est plutôt rare dans le métier.Publié sur Madame Sensuelle EquipeTrustindex vérifie que la source originale de l'avis est Google. Cette agence a su comprendre exactement mes besoins et mes envies pour ma boutique Madame Sensuelle. Leur architecte-designer a trouvé des solutions justes et élégantes, en créant un espace qui reflète parfaitement l’esprit de ma marque. Professionnels, créatifs et à l’écoute — je recommande vivement !👍🌹Publié sur Елена ВолодинаTrustindex vérifie que la source originale de l'avis est Google. Работать с L.Project — это просто восторг! Рекомендую от всей души. Команда креативная, внимательная и невероятно профессиональная. Подход к проекту продувается до мелочей и , соответственно, результат всегда стильный и впечатляющий. Настоящие мастера своего дела!Publié sur Julia ShiryaevaTrustindex vérifie que la source originale de l'avis est Google. C’était un projet clé en main, depuis les murs nus jusqu’à l’appartement fini dans lequel nous avons pu emménager immédiatement. Nous avons commandé tous nos meubles sur mesure avec L.Project, et nous sommes absolument ravis de la qualité et du prix. Le résultat a dépassé toutes nos attentes. Un grand merci à toute l’équipe pour leur professionnalisme et leur attention aux détails !
Réponse du propriétaire
Merci pour votre confiance 🙏🏻Publié sur Erick LabbeTrustindex vérifie que la source originale de l'avis est Google. Je viens de me faire livrer ma cuisine créer par L project, la cuisine est parfaite, conforme aux plans et visuels. Une super collaboration, merci à toute l'équipe.
Réponse du propriétaire
On vous remercie pour votre commentaire! 🙏🏻Certifié par: TrustindexLe badge vérifié de Trustindex est le symbole universel de confiance. Seules les meilleures entreprises peuvent obtenir le badge vérifié, avec une note supérieure à 4.5, basée sur les avis des clients au cours des derniers 12 mois. En savoir plus
Ce projet de rénovation à Antibes illustre la manière dont un espace peut être repensé pour conjuguer esthétique, confort et douceur de vivre.
Chaque détail, de la lumière naturelle aux choix de matériaux, a été pensé pour créer un lieu harmonieux, fidèle à l’esprit méditerranéen.
Que ce soit pour un pied-à-terre sur la Côte d’Azur ou pour la rénovation complète d’un appartement à Paris, notre approche sur mesure met l’accent sur la qualité, la fonctionnalité et l’émotion que dégage chaque intérieur.
Vous avez un projet d’aménagement ou de rénovation ? Contactez notre agence pour imaginer ensemble un espace qui vous ressemble, où chaque détail trouve naturellement sa place.
Rencontrez nos architectes d'intérieur
Olena
Architecte d’intérieur
Fondatrice et Gérante de l’agence L.Project Paris
+ 33 6 75 71 42 35
Elena
Architecte d’intérieur
Gérante de l’agence L.Project Paris
+ 33 6 98 76 57 47
Partagez le Projet sur les Réseaux