Fiche Projet
Les Points importants de la fiche technique de ce projet d’exception
- Lieu : Créteil, Val-de-Marne (94).
- Type de bien : Plateau de bureaux tertiaires.
- Surface : 240 m2.
- Client : Groupement Technique Industriel (GTI).
- Matériaux utilisés : Faux plafond acoustique, sol absorbant, papier peint panoramique, menuiserie intégrée.
- Synthèse technique : Transformation complète d’une coque vide en siège opérationnel avec intégration de cuisine, sanitaires et traitement acoustique global.
Comment transformer un plateau de bureau vide de 240 m2 dans le Val-de-Marne en un siège social inspirant ?
L’enjeu de cette réalisation était de métamorphoser une surface brute et impersonnelle en un
véritable cocon de créativité pour le Groupement Technique Industriel (GTI). L’intention architecturale repose sur un équilibre subtil entre une esthétique résidentielle chaleureuse et les exigences de performance d’un environnement tertiaire moderne.
Les Points-clés de cette Prestation :
- Identité affirmée : Une immersion chromatique audacieuse pour rompre avec les codes austères du secteur industriel.
- Convivialité augmentée : Des espaces de vie pensés comme des salons pour favoriser les échanges informels et le repos.
- Flexibilité d’usage : Une modularité permettant d’accueillir des collaborateurs en résidence ou en horaires décalés.
- Culture d’entreprise valorisée : Un aménagement qui transforme des locaux en un levier de fierté et de rétention pour les équipes.
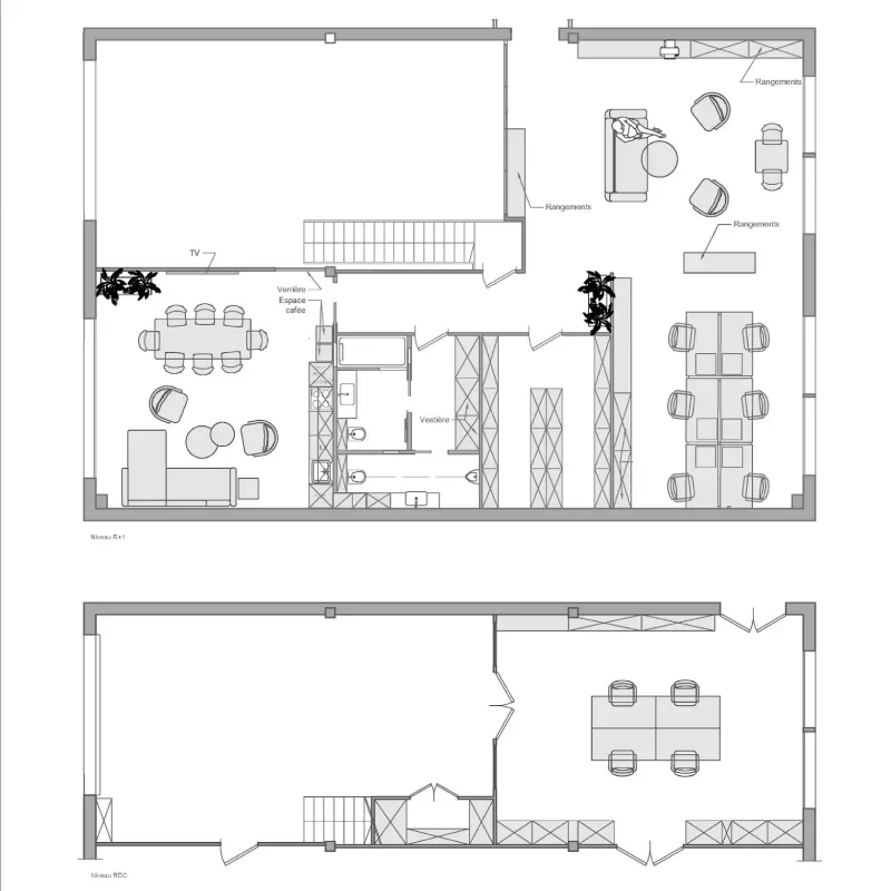
Plan du plateau
Portfolio de la Prestation
Comment structurer un plateau de 240 m² pour optimiser le travail collaboratif ?
Pour réussir l’aménagement de ce plateau de bureau vide de 240 m2 dans le Val-de-Marne, nous avons privilégié une sectorisation fluide qui évite l’effet « couloir. Le cœur du projet s’articule autour d’un open space lumineux accueillant six postes de travail ergonomiques, baignés de lumière naturelle. Cette configuration favorise la communication instantanée tout en respectant les zones de circulation vers les espaces supports comme la cuisine équipée et le grand coin repas.
Pourquoi choisir une palette terracotta et vert pour des bureaux professionnels ?
Loin des gris conventionnels, nous avons instauré une ambiance dynamique grâce à des tons terracotta et verts. Ces teintes, associées à des papiers peints à motifs naturels et des touches de végétation, créent une atmosphère apaisante qui réduit le stress et stimule la créativité. Ce choix chromatique permet de délimiter visuellement les zones sans cloisonner, offrant une lecture claire de l’espace entre production et détente.
Quelles solutions privilégier pour garantir un confort acoustique en open space ?
Le traitement phonique est la clé de voûte de tout aménagement réussi sur une grande surface ouverte. Pour GTI, nous avons intégré un faux plafond acoustique performant couplé à un revêtement de sol absorbant. Cette combinaison technique permet de maîtriser la réverbération sonore, assurant un environnement de travail calme malgré la proximité des postes et des zones de convivialité.
Comment concilier aménagement sur-mesure et budget maîtrisé ?
Le défi majeur consistait à offrir un design haut de gamme avec une gestion rigoureuse des
coûts. Nous avons relevé ce challenge en sélectionnant du mobilier de grande distribution avec soin, mis en valeur par des éléments architecturaux forts comme les luminaires et les revêtements muraux.
Résultat : un aménagement clé en main qui prouve qu’un plateau de bureaux de 240 m² peut être à la fois esthétique, fonctionnel et économiquement rationnel.
Foire aux Questions
Combien de temps faut-il pour aménager un plateau de bureau vide de 240 m2 dans le Val-de-Marne ?
Pour un projet de cette envergure (240 m²), comptez généralement entre 3 et 5 mois, incluant la phase de conception, la sélection des matériaux et la réalisation des travaux de second œuvre.
Quels sont les éléments indispensables pour un espace détente en entreprise ?
Un espace détente réussi doit rompre avec l’esthétique du poste de travail. Nous recommandons l’usage d’assises confortables (canapé, fauteuil), d’une lumière tamisée, de végétation et, comme ici chez GTI, d’un canapé convertible pour offrir une flexibilité totale aux collaborateurs.
Est-il possible d'avoir une cuisine complète dans un plateau tertiaire ?
Oui, et c’est un atout majeur pour la marque employeur. Dans ce projet de Créteil, nous avons installé une cuisine équipée fonctionnelle avec un véritable coin repas doté d’une télévision, transformant la pause déjeuner en un moment de partage convivial.
Comment l'acoustique est-elle gérée sans cloisonnement massif ?
L’acoustique se traite par les surfaces planes. En installant des dalles de faux plafond à haute absorption et des revêtements de sol spécifiques, nous traitons le bruit à la source sans bloquer la lumière ni la perspective du plateau de 240 m²
EXCELLENT Basée sur 11 avis Publié sur Kristine NaltchadjianTrustindex vérifie que la source originale de l'avis est Google. J’ai eu la chance de collaborer avec Elena Obiedcova et l'équipe L. Project sur plusieurs projets, tous menés de A à Z avec un professionnalisme exemplaire. Toujours à l’écoute, réactive et force de proposition, Elena a su allier sens esthétique, rigueur et efficacité. Elle a toujours respecté les délais et les budgets annoncés, ce qui est rare et précieux. Une architecte passionnée, dynamique et d’un grand sérieux — je la recommande sans hésiter !
Réponse du propriétaire
Merci infiniment pour ces mots si bienveillants ! Ce fut un véritable plaisir de collaborer avec vous sur ces projets.Toute l’équipe L.Project sera ravi de renouveler cette belle collaboration à l’avenir.Publié sur Vanessa F.Trustindex vérifie que la source originale de l'avis est Google. Un grand merci à Elena pour la rénovation complète de notre appartement. Disponible et à l’écoute, elle a su s’adapter à nos envies et a trouvé des solutions sur-mesure afin de s’adapter au mieux à nos demandes. Chaque détail a été pris en compte : de la conception des plans au suivi des travaux en passant par le choix des matériaux et des éléments de décoration, tout s’est très bien passé. Je recommande vivement de faire appel à cette agence d’architectes d’intérieur.
Réponse du propriétaire
Merci beaucoup pour votre confiance et pour ce retour si positif. Ce projet a été une très belle aventure, et on est ravi que le résultat soit à la hauteur de vos attentes. Votre implication et votre sens du détail ont largement contribué à la réussite du projet. Toute l’équipe L.Project vous remercie chaleureusement et vous souhaite beaucoup de bonheur dans votre nouvel intérieur !Publié sur Eric HouriTrustindex vérifie que la source originale de l'avis est Google. Nous avons beaucoup apprécié la qualité des échanges lors de la conception du projet, ainsi que les propositions faites et la prise en compte de nos souhaits. La réalisation enfin a été à la hauteur de ce qui nous a été présenté et respecte ce que nous avons décidé ensemble. Je recommande vivement cette agence qui fait preuve d'un grand professionnalisme.Publié sur Nataly KrinitskajaTrustindex vérifie que la source originale de l'avis est Google. Nous avons eu le plaisir de collaborer avec L.Project et nous sommes absolument ravis du résultat. Leur approche est à la fois créative et extrêmement professionnelle, chaque détail est pensé avec soin. L’équipe a su écouter nos besoins, proposer des solutions innovantes et gérer le projet avec une efficacité remarquable. Le design final dépasse nos attentes et reflète parfaitement l’élégance et la qualité premium que nous recherchions. Nous recommandons vivement L.Project à tous ceux qui souhaitent un travail architectural haut de gamme.Publié sur Franck Marie-SainteTrustindex vérifie que la source originale de l'avis est Google. Un grand merci à l’agence L.Project pour la rénovation de mon appartement : expertise, compétences , patience, créativité et imagination , étaient au rendez-vous. Le résultat est au-delà de mes attentes avec une livraison dans les délais ce qui est plutôt rare dans le métier.Publié sur Madame Sensuelle EquipeTrustindex vérifie que la source originale de l'avis est Google. Cette agence a su comprendre exactement mes besoins et mes envies pour ma boutique Madame Sensuelle. Leur architecte-designer a trouvé des solutions justes et élégantes, en créant un espace qui reflète parfaitement l’esprit de ma marque. Professionnels, créatifs et à l’écoute — je recommande vivement !👍🌹Publié sur Елена ВолодинаTrustindex vérifie que la source originale de l'avis est Google. Работать с L.Project — это просто восторг! Рекомендую от всей души. Команда креативная, внимательная и невероятно профессиональная. Подход к проекту продувается до мелочей и , соответственно, результат всегда стильный и впечатляющий. Настоящие мастера своего дела!Publié sur Julia ShiryaevaTrustindex vérifie que la source originale de l'avis est Google. C’était un projet clé en main, depuis les murs nus jusqu’à l’appartement fini dans lequel nous avons pu emménager immédiatement. Nous avons commandé tous nos meubles sur mesure avec L.Project, et nous sommes absolument ravis de la qualité et du prix. Le résultat a dépassé toutes nos attentes. Un grand merci à toute l’équipe pour leur professionnalisme et leur attention aux détails !
Réponse du propriétaire
Merci pour votre confiance 🙏🏻Publié sur Erick LabbeTrustindex vérifie que la source originale de l'avis est Google. Je viens de me faire livrer ma cuisine créer par L project, la cuisine est parfaite, conforme aux plans et visuels. Une super collaboration, merci à toute l'équipe.
Réponse du propriétaire
On vous remercie pour votre commentaire! 🙏🏻Certifié par: TrustindexLe badge vérifié de Trustindex est le symbole universel de confiance. Seules les meilleures entreprises peuvent obtenir le badge vérifié, avec une note supérieure à 4.5, basée sur les avis des clients au cours des derniers 12 mois. En savoir plus
Ce projet clé en main a été mené de la conception à l’installation, avec une attention particulière portée à l’expérience des utilisateurs, à l’acoustique des open spaces et à l’intégration d’espaces de convivialité. Situé à Créteil (Val-de-Marne), il illustre notre savoir-faire en aménagement de bureaux en Île-de-France pour des entreprises souhaitant agrandir ou reconfigurer leurs espaces de travail de manière efficace et cohérente.
Vous avez un projet d’aménagement ou de rénovation ? Contactez notre agence pour imaginer ensemble un espace qui vous ressemble, où chaque détail trouve naturellement sa place.
Rencontrez nos architectes d'intérieur
Olena
Architecte d’intérieur
Fondatrice et Gérante de l’agence L.Project Paris
+ 33 6 75 71 42 35
Elena
Architecte d’intérieur
Gérante de l’agence L.Project Paris
+ 33 6 98 76 57 47
Partagez le Projet sur les Réseaux