Fiche Projet
Fiche technique de ce projet d’exception
- Lieu : Paris 6e arrondissement
- Type de bien : Appartement sous combles (extension et aménagement)
- Surface : 48 m2
- Profil Client : Particulier
- Matériaux : Bois (poutres d’origine), textiles doux, finitions mates (bleu, gris, café au lait)
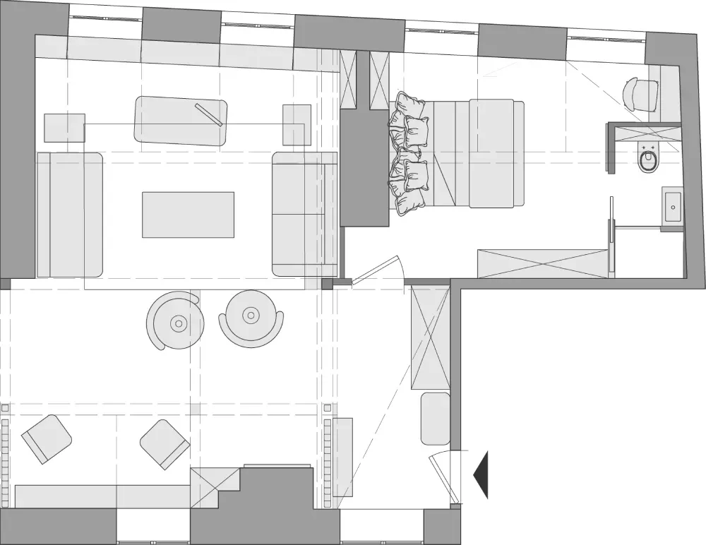
- Synthèse technique : Restructuration complète d’un volume mansardé avec optimisation ergonomique de la surface habitable sous rampants.
Aménager un appartement mansardé avec poutres apparentes | la métamorphose élégante d’un 48m2 à Paris 6e
En résumé :
Transformer la complexité d’un volume sous combles en un refuge urbain suspendu, où l’élégance architecturale rencontre la sérénité. Ce projet sublime l’atypique pour offrir un cadre de vie aussi créatif que reposant, parfaitement adapté à la singularité de ses occupants.
Les Points-clés de cette Prestation :
- Mise en valeur magistrale du patrimoine architectural originel pour un cachet authentique.
- Création d’un cocon feutré et inspirant, propice à la détente et à la créativité.
- Optimisation invisible de chaque mètre carré pour un confort de vie sans compromis.
Portfolio de la Prestation
Comment aménager un appartement mansardé avec poutres apparentes pour optimiser l’espace ?
Le défi principal de cette réalisation résidait dans la transformation d’un espace mansardé complexe en un lieu de vie fonctionnel et inspirant. Pour réussir à aménager cet appartement
mansardé avec poutres apparentes, chaque mètre carré a été rigoureusement pensé selon une logique d’ergonomie et d’optimisation. Cette approche permet d’exploiter pleinement la géométrie atypique des combles, transformant les contraintes structurelles en véritables atouts spatiaux.
Quelle ambiance privilégier pour sublimer le charme des mansardes ?
Dans ce projet, les plafonds inclinés ne sont plus une contrainte mais le cœur de l’esthétique. Les poutres en bois apparentes ont été magnifiées pour structurer l’espace, à la manière de branches entrelacées qui dessinent une atmosphère protectrice. Ce cadre architectural est complété par une palette chromatique de bleu profond, gris nuancé et café au lait, apportant une profondeur et une ambiance feutrée unique au lieu.
Comment apporter du caractère à un intérieur sous les toits ?
L’identité visuelle repose sur le contraste entre la structure brute et la douceur des finitions. Les textures douces invitent immédiatement au confort, contrastant avec une décoration audacieuse et des œuvres d’art qui révèlent la personnalité des habitants. Ce dialogue entre architecture ancienne et design contemporain crée un espace conçu pour inspirer, reposer et
révéler toute la singularité de ce projet situé au cœur du 6e arrondissement de Paris.
Foire aux Questions
Est-il possible de conserver toutes les poutres apparentes dans un petit appartement de 48m2 ?
Quelles couleurs choisir pour ne pas assombrir un appartement sous les toits ?
Comment maximiser le rangement dans une géométrie atypique ?
EXCELLENT Basée sur 11 avis Publié sur Kristine NaltchadjianTrustindex vérifie que la source originale de l'avis est Google. J’ai eu la chance de collaborer avec Elena Obiedcova et l'équipe L. Project sur plusieurs projets, tous menés de A à Z avec un professionnalisme exemplaire. Toujours à l’écoute, réactive et force de proposition, Elena a su allier sens esthétique, rigueur et efficacité. Elle a toujours respecté les délais et les budgets annoncés, ce qui est rare et précieux. Une architecte passionnée, dynamique et d’un grand sérieux — je la recommande sans hésiter !Publié sur Vanessa F.Trustindex vérifie que la source originale de l'avis est Google. Un grand merci à Elena pour la rénovation complète de notre appartement. Disponible et à l’écoute, elle a su s’adapter à nos envies et a trouvé des solutions sur-mesure afin de s’adapter au mieux à nos demandes. Chaque détail a été pris en compte : de la conception des plans au suivi des travaux en passant par le choix des matériaux et des éléments de décoration, tout s’est très bien passé. Je recommande vivement de faire appel à cette agence d’architectes d’intérieur.Publié sur Eric HouriTrustindex vérifie que la source originale de l'avis est Google. Nous avons beaucoup apprécié la qualité des échanges lors de la conception du projet, ainsi que les propositions faites et la prise en compte de nos souhaits. La réalisation enfin a été à la hauteur de ce qui nous a été présenté et respecte ce que nous avons décidé ensemble. Je recommande vivement cette agence qui fait preuve d'un grand professionnalisme.Publié sur Nataly KrinitskajaTrustindex vérifie que la source originale de l'avis est Google. Nous avons eu le plaisir de collaborer avec L.Project et nous sommes absolument ravis du résultat. Leur approche est à la fois créative et extrêmement professionnelle, chaque détail est pensé avec soin. L’équipe a su écouter nos besoins, proposer des solutions innovantes et gérer le projet avec une efficacité remarquable. Le design final dépasse nos attentes et reflète parfaitement l’élégance et la qualité premium que nous recherchions. Nous recommandons vivement L.Project à tous ceux qui souhaitent un travail architectural haut de gamme.Publié sur Franck Marie-SainteTrustindex vérifie que la source originale de l'avis est Google. Un grand merci à l’agence L.Project pour la rénovation de mon appartement : expertise, compétences , patience, créativité et imagination , étaient au rendez-vous. Le résultat est au-delà de mes attentes avec une livraison dans les délais ce qui est plutôt rare dans le métier.Publié sur Madame Sensuelle EquipeTrustindex vérifie que la source originale de l'avis est Google. Cette agence a su comprendre exactement mes besoins et mes envies pour ma boutique Madame Sensuelle. Leur architecte-designer a trouvé des solutions justes et élégantes, en créant un espace qui reflète parfaitement l’esprit de ma marque. Professionnels, créatifs et à l’écoute — je recommande vivement !👍🌹Publié sur Елена ВолодинаTrustindex vérifie que la source originale de l'avis est Google. Работать с L.Project — это просто восторг! Рекомендую от всей души. Команда креативная, внимательная и невероятно профессиональная. Подход к проекту продувается до мелочей и , соответственно, результат всегда стильный и впечатляющий. Настоящие мастера своего дела!Publié sur Julia ShiryaevaTrustindex vérifie que la source originale de l'avis est Google. C’était un projet clé en main, depuis les murs nus jusqu’à l’appartement fini dans lequel nous avons pu emménager immédiatement. Nous avons commandé tous nos meubles sur mesure avec L.Project, et nous sommes absolument ravis de la qualité et du prix. Le résultat a dépassé toutes nos attentes. Un grand merci à toute l’équipe pour leur professionnalisme et leur attention aux détails !Publié sur Erick LabbeTrustindex vérifie que la source originale de l'avis est Google. Je viens de me faire livrer ma cuisine créer par L project, la cuisine est parfaite, conforme aux plans et visuels. Une super collaboration, merci à toute l'équipe.Certifié par: TrustindexLe badge vérifié de Trustindex est le symbole universel de confiance. Seules les meilleures entreprises peuvent obtenir le badge vérifié, avec une note supérieure à 4.5, basée sur les avis des clients au cours des derniers 12 mois. En savoir plus
Ce projet de rénovation à Antibes illustre la manière dont un espace peut être repensé pour conjuguer esthétique, confort et douceur de vivre.
Chaque détail, de la lumière naturelle aux choix de matériaux, a été pensé pour créer un lieu harmonieux, fidèle à l’esprit méditerranéen.
Que ce soit pour un pied-à-terre sur la Côte d’Azur ou pour la rénovation complète d’un appartement à Paris, notre approche sur mesure met l’accent sur la qualité, la fonctionnalité et l’émotion que dégage chaque intérieur.
Vous avez un projet d’aménagement ou de rénovation ? Contactez notre agence pour imaginer ensemble un espace qui vous ressemble, où chaque détail trouve naturellement sa place.
Rencontrez nos architectes d'intérieur
Olena
Architecte d’intérieur
Fondatrice et Gérante de l’agence L.Project Paris
Elena
Architecte d’intérieur
Gérante de l’agence L.Project Paris
Partagez le Projet sur les Réseaux